Ironwood
Bullhead City, Nevada

Community Information
Welcome to Ironwood at North Fork in Laughlin Ranch Discover relaxed desert living at Ironwood, a thoughtfully designed single-story community located within the North Fork neighborhood of Laughlin Ranch. In Bullhead City, Arizona Ironwood features four distinct floorplans ranging from 1,617 to 2,249 square feet, offering flexible layouts designed for comfort, functionality, and modern living. With RV garage options available, Ironwood is ideal for homeowners who value extra space for recreation, storage, or travel-ready lifestyles. The community’s peaceful setting and scenic desert surroundings create a welcoming environment that feels both private and connected. Whether you’re enjoying quiet days at home, hosting family and friends, or exploring nearby river activities, golf, and outdoor recreation, Ironwood at Laughlin Ranch offers a lifestyle that blends convenience, comfort, and the beauty of Arizona living.
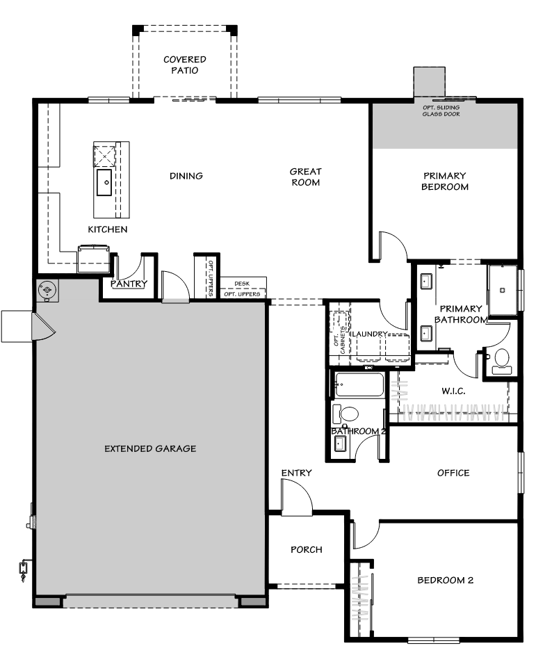
Residence 1617
(RV Garage Optional)
2 Bedrooms, 2 Baths, Office, 1,617 Square Feet
View Plan Details
RESIDENCE 1617
DETAILS
- 2 Bedrooms
- 2 Baths
- Office
- 1,617 Square Feet
Elevations

Ironwood Residence 1617 Elevation A

Ironwood Residence 1617 Elevation B

Ironwood Residence 1617 Elevation B RV(Optional)

Ironwood Residence 1617 Elevation C
Floor Plans
- Standard Plan
- RV Garage Option
- Room Option(s)
Live Wise
Legacy Homes' "Live Wise" program takes a conscious approach to building healthier homes for today's homebuyer. Our goal to provide efficiency in your new home is the first step in creating healthier homes and more efficient living environments. Comfort, convenience and savings, along with better building practices are part of Legacy's "Live Wise" commitment.
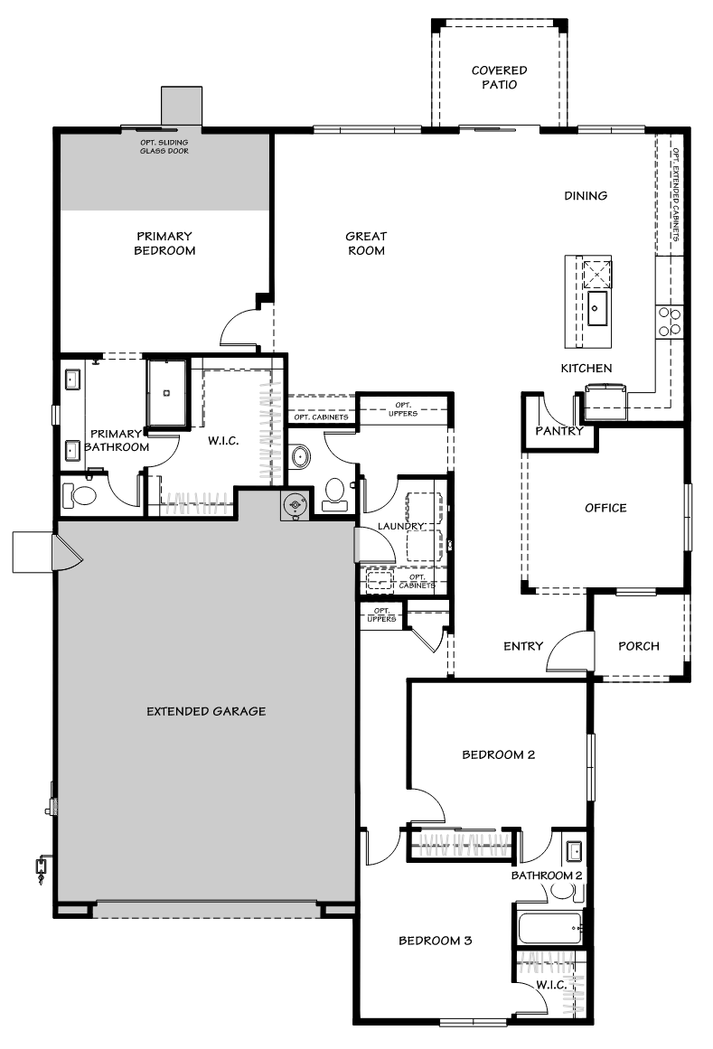
RESIDENCE 1808
DETAILS
- 3 Bedrooms
- 2 Baths
- 1,808 Square Feet
Elevations

Ironwood Residence 1808 Elevation A

Ironwood Residence 1808 Elevation B

Ironwood Residence 1808 Elevation C
Floor Plans
- Standard Plan
- RV Garage Option
- Room Option(s)
Live Wise
Legacy Homes' "Live Wise" program takes a conscious approach to building healthier homes for today's homebuyer. Our goal to provide efficiency in your new home is the first step in creating healthier homes and more efficient living environments. Comfort, convenience and savings, along with better building practices are part of Legacy's "Live Wise" commitment.
RESIDENCE 2047
DETAILS
- 3 Bedrooms
- 2.5 Baths
- Office
- 2,047 Square Feet
Elevations

Ironwood Residence 2047 Elevation A

Ironwood Residence 2047 Elevation B

Ironwood Residence 2047 Elevation C

Ironwood Residence 2047 Elevation C RV(Optional)
Floor Plans
- Standard Plan
- RV Garage Option
- Room Option(s)
Live Wise
Legacy Homes' "Live Wise" program takes a conscious approach to building healthier homes for today's homebuyer. Our goal to provide efficiency in your new home is the first step in creating healthier homes and more efficient living environments. Comfort, convenience and savings, along with better building practices are part of Legacy's "Live Wise" commitment.
RESIDENCE 2249
DETAILS
- 4 Bedrooms
- 2.5 Baths
- 2,249 Square Feet
- Legacy Living Option
Elevations

Ironwood Residence 2249 Elevation A

Ironwood Residence 2249 Elevation B

Ironwood Residence 2249 Elevation C
Floor Plans
- Standard Plan
- RV Garage Option
- Room Option(s)
- Legacy Living Plan
Live Wise
Legacy Homes' "Live Wise" program takes a conscious approach to building healthier homes for today's homebuyer. Our goal to provide efficiency in your new home is the first step in creating healthier homes and more efficient living environments. Comfort, convenience and savings, along with better building practices are part of Legacy's "Live Wise" commitment.
Contact Information
Sales Representative
Nancy Laughlin
(BRE# BR541870000)
(928) 770-6867
Email
Sales Office Address
Call For Appointment
Community Features
- Luxury Vinyl Plank at Entry, Kitchen, Primary Bathroom, Secondary Bathrooms, Laundry & Powder
- Slab Granite Countertops Throughout
- Molded Two Panel Interior Doors
- Sliding Glass Door to Rear Yard
- Decorator Light Fixtures
- Interior Laundry Rooms
- Satin Nickel Designer Interior Hardware
- Pre-wire CAT 6, Cable and Phone in Primary Bedroom, Office and Great Room
- Pre-wire for Ceiling Fan with (Ceiling Mount Light Fixture) in Family Room and Primary Bedroom
- Rocker Style Light Switches
- Overhead Lights in Bedrooms
- Dramatic Primary Suites Featuring Large Walk-In Closets and Ensuite Bathrooms
- Pre-wire for Ceiling Fan with (Ceiling Mount Light Fixture)
- Slab Granite Vanity with Dual Sinks
- Luxury Vinyl Plank Flooring at Primary Bathroom
- Full Width Vanity Mirror
- Shower with Clear Glass & Chrome Enclosure with 12” x 24” Tile Walls (per plan)
- Attractive Moen® Chrome Bathroom Fixtures
- Compartmentalized Water Closet
- Designer Light Fixtures over Vanity
- Medicine Cabinets with Adjustable Shelves
- Pre-wire CAT 6, Cable and Phone
- Elongated Toilets
- Whirlpool®Stainless Steel Gas Range
- Whirlpool® Stainless Steel Multi-Cycle Dishwasher
- Whirlpool® Stainless Steel Microwave Hood Combo
- Slab Granite Countertops with 6” Backsplash (Full Height at Range)
- Luxury Vinyl Plank Flooring
- Large Prep Center Islands
- Designer White Thermofoil Frameless Cabinetry With Shaker Doors and Chrome Knobs
- Refrigerator Area Pre-plumbed for Icemaker
- Moen® Single Lever Stainless Steel Faucet with Pullout Spray Attachment
- Stainless Steel Single Bowl Sink
- In-Sink Disposal
- Spacious Pantry
- Elegantly Designed Spanish Colonial, Tuscan & Craftsman Architectural Detailing (per plan)
- Painted Stucco Exteriors
- Designer Selected Exterior Color Schemes
- Energy Efficient Concrete Tile Roofs
- Raised Panel Steel Sectional Insulated Garage Doors
- Front Yard Desert-Scape Low Maintenance Landscaping with Automatic Irrigation
- Covered Patios
- High-Efficiency 2×6 Insulated Exterior Walls (R-26 total)
- Central Heating and Air Conditioning
- 14 Seer Rating
- Honeywell Set Back Thermostat
- Dual Pane “Low E” Glass Windows
- Water Saving Showers and Commodes
- R-38 Insulation in Ceilings
- Soft Water/RO Loop & Drain
- Block Wall Fencing
- Smoke Detectors
- Security Viewer and Electric Doorbell
- Fiberglass Insulated Front Entry Door with Raised Panels
- Full Drywall Garage
- Garage Door Opener
- RV Garages (per plan) Come with Full RV Hook-Ups and Mini-Split HVAC Located Inside Garage for Convenience. Waste, Water and 50 Amp Electrical